如果您正在尋找相關產品或有其他任何問題,可隨時撥打公司服務熱線,或點擊下方按鈕與我們在線交流!
方案背景:
華東、東北、西北地區為我國主要的成品油產地,約占全國總供應量的 70%。隨著國內車用天然氣、生物燃料、煤制油、電力等車用替代燃料的發展,柴汽等成品油需求增長保持中低速態勢。總體來看,石油煉制工業發展需要消耗大量的資源,并給環境造成一定污染,因此面臨著滿足質量及節能減排要求帶來的成本增加等問題。鍋爐作為成品油煉制生產中必不可少的生產裝置之一,在煉油企業面臨轉型的過程中,也發揮著重要作用。
方案介紹:
適用行業:石化行業 方案額定出力:70噸
煉油廠主要生產裝置通常有:原油蒸餾(常、減壓蒸餾)、熱裂化、催化裂化、加氫裂化、石油焦化、催化重整以及煉廠氣加工、石油產品精制等。蒸汽鍋爐是輕油煉制工業生產過程中經常用到的重要設備,它所產生的蒸汽是石油化工生產中不可缺少的熱源和動力源,不僅用于石油化工生產過程,也可以加熱石油并增加流動性。一般在成品油煉制中的原油減壓蒸餾、減壓餾分及渣油焦化深加工等環節中提供熱量。

中正鍋爐服務過全國多家成品油煉制企業,擁有多年該行業的項目經驗。由于化工企業使用鍋爐的特殊性,中正鍋爐的技術人員會根據用戶對鍋爐的安全系數、控制方式等量身打造符合石油化工生產需求的技術方案,大程度上保證操作的簡便及鍋爐的安全性。
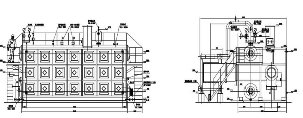
通過將中正鍋爐的客戶案例進行統計分析,可以看出對成品油煉制行業而言,SZS系列冷凝式燃氣(油)鍋爐的應用頻率較高,對有機熱載體鍋爐的應用相對少。如某汽油、柴油生產企業年產量約120萬噸,中正鍋爐為其推薦了兩臺35噸的SZS35-1.65/280-Q蒸汽鍋爐用于生產中提供直接蒸汽和熱源。
方案優勢:
設備自動化程度較高
中正鍋爐研發的SZS系列蒸汽鍋爐運行機械化和控制自動化程度比較高。

節能環保,燃料具有較強的適應性
選用的爐膽尺寸大,為燃料的充分燃燒提供條件,因此,對不同燃料具有較強的適應性,并且節能環保效果好。
量身打造符合生產需求的技術方案
由于化工企業使用鍋爐的特殊性,中正鍋爐的技術人員會根據用戶對鍋爐的安全系數、控制方式等量身打造符合石油化工生產需求的技術方案,大程度上保證操作的簡便及鍋爐的安全性。
文章【石化行業成品油煉制供熱解決方案】由鍋爐廠整理發布,轉載請注明:http://www.tianmaot.com/new/7.html